Tauchbecken für die gewerbliche oder private Sauna
für die gewerbliche oder private Sauna
Erfrischung nach der Sauna
„Kalttauchbecken sind serienmäßig mit großzügigen Einstiegstufen ausgestattet. Trittflächen und Böden sind rutschhemmend profiliert, was einen sicheren Ein- und Ausstieg gewährleistet. Eine partielle Überlaufrinne führt verdrängtes Wasser in den Kanal ab und dient als Sicherheitsüberlauf. Für den Bodenablauf ist eine Mulde eingeformt. Die Beckenwände sind durch eingeformte Profile versteift.“ RivieraPool
Tauchbecken für die Sauna & Spa
- „Kalttauchbecken mit Glasrand 23 cm hoch aus 20 mm starkem Acrylglas
- Beckenkörper aus Epoxy-Acrylat mit sehr glatter Oberfläche
- 5 Einstiegstufen und Boden mit rutschhemmend profilierter Oberfläche
- Handlauf aus Edelstahl, elektropoliert – umlaufende Überlaufrinne
- Abdeckrost aus PVC, transparent
- 2 Ablaufstutzen d 63 und Siphon
- Bodenablauf RG 1 ½“ mit Ablaufmulde und Antiwirbeldeckel
- justierbares Trägergestell am Boden und 2 Treppenstützen
- Unterwasserbeleuchtung LED, Eisblau, mit Einbaunische und Schaltkasten“ RivieraPool
Tauchbeckenautomatik mit automatischer Befüllung
Die Tauchbeckenautomatik befüllt und entleert das Saunatauchbecken automatisch. Dabei wird das Füllwasser entsprechend den Hygienevorschriften mit freiem Einlauf (DIN EN 1717) kontinuierlich mit Chlorlösung desinfiziert (DIN 19643).
Der neue Cold Dip. Das neue Design-Kalttauchbecken
Kalttauchbecken COLD DIP Ice Cube
- Kalttauchbecken mit Glasrand 23 cm hoch aus 2,0 cm starkem Acrylglas
- Beckenkörper aus Epoxy-Acrylat mit sehr glatter Oberfläche
- 5 Einstiegstufen und Boden mit rutschhemmend profilierter Oberfläche
- Handlauf aus Edelstahl, elektropoliert
- umlaufende Überlaufrinne
- Abdeckrost aus PVC, transparent
- 2 Ablaufstutzen d 63 und Siphon
- Bodenablauf RG 1 ½“ mit Ablaufmulde und Antiwirbeldeckel
- justierbares Trägergestell am Boden und 2 Treppenstützen
- Unterwasserbeleuchtung, LED, Eisblau, mit Einbaunische und Schaltkasten
Luft und Welle, zwei Venturi Strömungsdüsen mit Luftbeimischung über freie Ansaugung aus dem Technikraum, Pumpe 0,75 kW-230 V und 2 Ansaugstutzen im Becken, ohne Schaltung
- Außenmaße: 220 x 220 x 137 cm (L x B x H)
- Lichte Tiefe: 117 cm
- Füllmenge: 1.800 l
- Gewicht: ca. 240 kg (mit Glasrand)
Farben:
- weiß, einfarbig
- silbergrau, einfarbig
Rinnenbeleuchtung, LED, Eisblau, 4 x 35 W
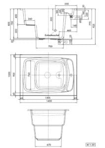
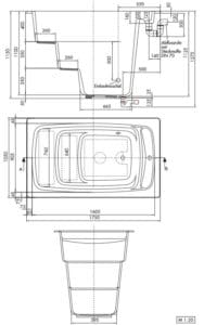
Kalttauchbecken Karo 120
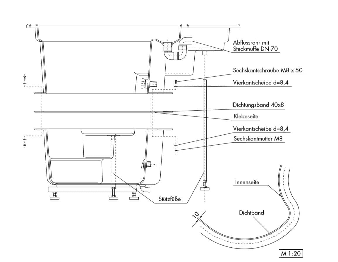
Quadratische Ausführung aus Poly ester, mit 5-stufigem Einstieg, Stufen rutschhhemmend profiliert, mit umlaufender Überlaufrinne, Handlauf aus Edelstahl, elektropoliert, justierbarem Trägergestell und zwei justierbaren Treppenstützen, Bodenablauf RG 1 1/2“ mit poliertem Deckel und Ablaufmulde, zwei Ablaufstutzen d 63 und Siphon in der Rinne.
- Außenmaße: L x B: 195 x 195 cm
- Lichte Tiefe: 120 cm
- Füllmenge: 1.600 l
- Gewicht: 110 kg
Farben:
- weiß
- meerblau
- papyrus mit silbergrau abgesetzten Stufen
Passendes Zubehör
Designrost
Designrost aus transparentem Acryl, Vollmaterial gefräst, Oberseite transparent, Unterseite Eismatt, 27 x 2,0 cm (B x H), rundumlaufend, ohne Gehrung.
- Weiß einfarbig
- Silbergrau einfarbig
Fernbedienung
Fernbedienung für RGB-Farblicht.
Mit Dimmer und Scrollfunktion, inkl. DMX-fähiger Steuerung und Trafo 300 VA.
LED-Beleuchtung
- LED-Kleinscheinwerfer, 30 W/12 V, warmweiß, Ø 100 mm mit Edelstahlblende
- LED-Kleinscheinwerfer, 45 W/12 V, RGB, Ø 100 mm mit Edelstahlblende
Saunatauchbecken
Kalttauchbecken Rondo 125
Runde Ausführung aus Polyester mit 4-stufigem Einstieg, Stufen und Boden rutschhemmend profiliert, mit stirnseitiger Überlaufrinne, Handlauf aus Edelstahl, weiß, justierbarem Träger gestell, Boden ablauf RG 1 1/2“ mit weißem Deckel und Ablaufmuffe d 63 mit Siphon in der Rinne.
- Außenmaße: L x B: 215 x 210 cm
- Lichte Tiefe: 125 cm
- Füllmenge: 1.680 l
- Gewicht: 115 kg
Farben:
- meerblau
- weiß
Kalttauchbecken Rondo 125 split
Wie Rondo, jedoch 2-geteilte Ausführung mit Schraubflanschen zur vereinfachten Einbringung in die Baustelle. Montagematerial ist enthalten. Verschraubung bauseits.
- Außenmaße: L x B: 215 x 210 cm
- Lichte Tiefe: 125 cm
- Füllmenge: 1.680 Ltr.
- Gewicht: 121 kg
- Farben: meerblau/weiß
Kalttauchbecken Mini 75
Rechteckige Ausführung aus Polyester, mit einer Sitzstufe und stirnseitiger Überlaufrinne, Bodenablauf mit Gummikugel und Kette sowie Ablaufventil d 50 mit Siphon in der Rinne, Einbauteile weiß.
- L x B: 145 x 105 cm
- Lichte Tiefe: 75 cm
- Füllmenge: 520 Ltr.
- Gewicht: ca. 40 kg
- Farben: meerblau/weiß
Kalttauchbecken Maxi 110
Rechteckige Ausführung aus Polyester, mit zwei Stufen und stirnseitiger Überlaufrinne, Bodenablauf mit Gummikugel und Kette sowie Ablauf d 63 mit Siphon in der Rinne, Einbauteile weiß.
- L x B: 175 x 105 cm
- Lichte Tiefe: 110 cm
- Füllmenge: 850 Ltr.
- Gewicht: ca. 60 kg
Mehr von Fire & Ice
Eisduschen
In der Eisdusche erfrischen Sie sich mit extrakalten Schwallen, Nebeln oder Regengüssen. Und mit frischem Crushed-Ice schließen Sie die Poren Ihrer Haut garantiert. Der Boden der Eisgrotte ist ein Fussreflexzonenpfad aus einheimischen Kieselsteinen des Vorderrheins, die Ihre Fusssohlen massieren und dadurch Ihren Kreislauf anregen.
Fußbecken
Fußbecken Fire & Ice Design besticht durch schlichtes, formschönes Design. Die gerade Linienführung und Stilvolle Architektur fügen sich perfekt in jedes Spa ein und machen die das Fußbecken zeitloser Eleganz. Bei Fire & Ice können Sie Modell, Material und Größe auswählen, damit das Fußbecken zu eine perfekte Ergänzung für Ihre Saunaanlage wird.
Beratung von A-Z
Wir beraten Sie online und telefonisch. Egal welche Anfrage Sie haben oder welchen Rat Sie suchen, wir haben für jedes Anliegen Fachkräfte in unserem Haus, die Ihnen eine freundliche, kundenorientierte Beratung bieten. Sie finden ein bestimmtes Produkt nicht in unserem Sortiment? Wir nehmen laufend neue Produkte auf. Bitte zögern Sie nicht, uns anzusprechen, wir versuchen, jeden Wunsch zu erfüllen. Auch bei der Umsetzung Ihres Projektes unterstützen wir Sie von der Planung bis zur schlüsselfertigen Übergabe.
Georg Zelger, Inhaber Tweet





